jklm logo
Freie Architekten PartGmbB

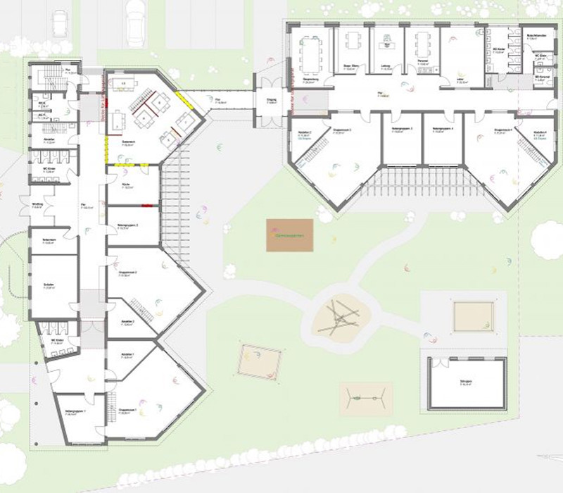
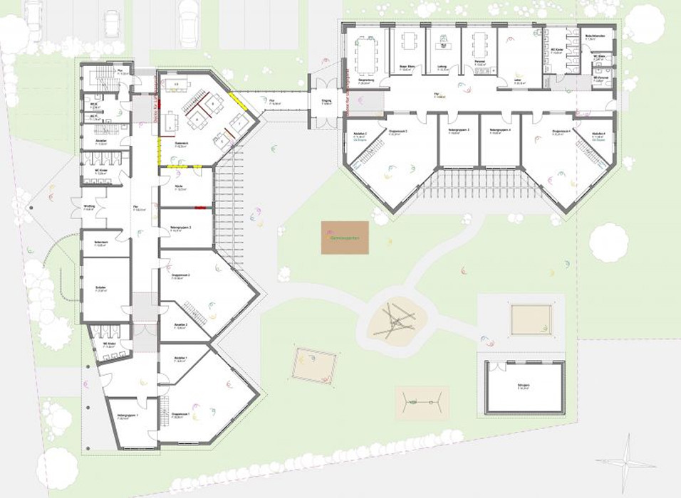
Kindergartenerweiterung

 

  • Auftraggeber: Gemeinde Ummendorf
  • Leistungsphase: 1-3